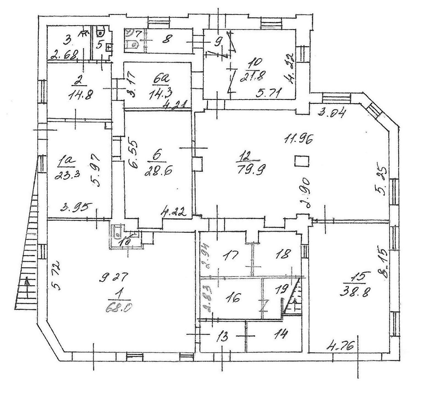
Продажа коммерческой недвижимости, 916 м²
Продажа трехэтажного отдельно стоящего здания.

Под любой вид деятельности.

Высота потолков от 3 до 3,6 м.
1 этаж - 356,6 м2
2 этаж - 359,4 м2
+ мансарда - 200 м2

Своя котельная - есть газ.
Парковка на 8 мм.
45 КВт (в процессе оформления на 150 кВт дополнительно).


Договор аренды ЗУ: 49 лет ВРИ: торговля, общепит, медицина, деловое обслуживание, производство.
Ссылка на объявление: https://alfa-rielt.com/com/salecommercial/7107
210 000 000
Олег Макеев


Москва, улица Летниковская, д 18 стр 1
Павелецкая0.7 кмПавелецкая1 кмСерпуховская1.2 км

Информация по объекту

Площадь916 Этаж1 Этажей в доме2 ПланировкаСмешанная Кол-во мокрых точек4 СостояниеОфисная отделка МебельНет ДоступСвободный ПарковкаНаземная НалогУСН (упрощенная система налогообложения)

Информация по зданию

Тип строенияОсобняк Площадь здания916 КатегорияДействующее ВентиляцияЕстественная КондиционированиеМестное Система пожаротушенияСигнализация

Инфраструктура