Предлагаем в аренду помещение в бизнес парке: «Московский шёлк »

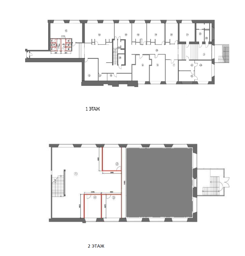
Общая площадь 752 кв.м.

Описание помещения:
- первый и второй этаж
- смешанная планировка, кухня.

Коммуникации и инженерные системы:
- система приточно-вытяжной вентиляции, кондиционирование
- централизованная система отопления
- централизованная система пожарной сигнализации
- оборудованные сан. узлы

- круглосуточная охрана территории и видеонаблюдение
- круглосуточный подземный и наземный паркинг
-корпоративный транспорт от станций метро Спортивная и Киевская
- шаговая доступность метро Спортивная (15 минут)
- круглосуточная поддержка арендаторов через Диспетчерскую

Коммерческие условия:
- Ставка арендной платы составляет 36 000 руб. кв.м. в год, включая НДС.
- Коммунальные расходы - по счётчикам.
- Паркинг: наземный, стоимость 20 000 руб. месяц (1 м/м)
Ссылка на объявление: https://alfa-rielt.com/com/rentcommercial/92826
2 257 200 в месяц за все
Олег Макеев


Москва, переулок Большой Саввинский, д 12 стр 6
Киевская1.1 кмКиевская1.1 кмСтуденческая1.1 км

Информация по объекту

Вид объектаОфис Площадь752 Этаж1 Юридический адресПредоставляется ПланировкаСмешанная Кол-во мокрых точек2 СостояниеОфисная отделка МебельНет НалогНДС включен

Информация по зданию

Название БЦМосковский шёлк Тип строенияБизнес-парк Класс зданияB Этажей в доме2 КатегорияДействующее ВентиляцияПриточная КондиционированиеЦентральное ОтоплениеЦентральное Система пожаротушенияСигнализация ДоступПропускная система Номер налоговой4 ПарковкаНаземная Стоимость парковки20000

Цена и условия сделки

Тип арендыПрямая Срок арендыДлительный Минимальный срок аренды от11 Арендные каникулыЕсть Обеспечительный платеж2257200 Предоплата1

В ставку включены

check Эксплуатационные расходы

Инфраструктура

check Буфетcheck Столоваяcheck Центральная рецепция check Банкоматcheck Аптекаcheck Отделение банка check Медицинский центрcheck Салон красотыcheck Фотосалон check Ателье одеждыcheck Паркcheck Ресторан check Минимаркетcheck Торговая зона check Конференц-зал