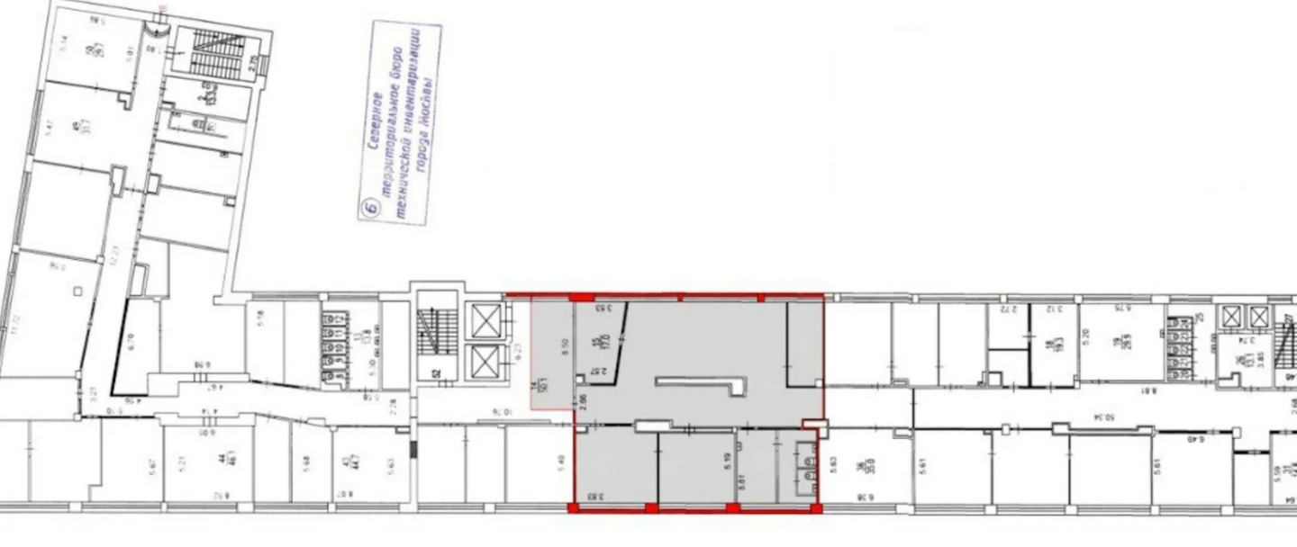
Офисное помещение в Бизнес-Центре «Авион».

Общая площадь 295 кв.м.
Состояние помещений - с отделкой.
Смешанная планировка -кухня, с/у.

Вентиляция: приточно-вытяжная.
Кондиционирование.
Видеонаблюдение.
Система контроля доступа.

Противопожарные системы: сплинкерная система, система оповещения.
Инфраструктура: ресепшн, кафе, конференц-зал, переговорные комнаты.

Парковка: гостевая, стихийная, наземный паркинг.

Телекоммуникации: более 10 провайдеров.

Ставка аренды 55 000 руб. кв.м. в год, включая НДС и ОРЕХ.
Коммунальные услуги оплачиваются по факту.
Страховой депозит 2 месяца.
Договор прямой аренды.
Ссылка на объявление: https://alfa-rielt.com/com/rentcommercial/92811
1 352 084 в месяц за все
Олег Макеев


Москва, проспект Ленинградский, д 47 стр 3
Аэропорт0.2 кмСокол1.2 кмЦСКА1.4 км

Информация по объекту

Вид объектаОфис Площадь295 Этаж4 Юридический адресПредоставляется ПланировкаСмешанная Кол-во мокрых точек2 СостояниеОфисная отделка МебельНет НалогНДС включен

Информация по зданию

Название БЦАвион Тип строенияБизнес-центр Класс зданияB+ Этажей в доме6 КатегорияДействующее ВентиляцияПриточная КондиционированиеЦентральное ОтоплениеЦентральное Система пожаротушенияСигнализация ДоступПропускная система Номер налоговой14 ПарковкаНаземная Стоимость парковки23000

Цена и условия сделки

Тип арендыПрямая Срок арендыДлительный Минимальный срок аренды от11 Арендные каникулыЕсть Обеспечительный платеж2700000 Предоплата1

В ставку включены

check Эксплуатационные расходы

Инфраструктура

check Буфетcheck Столоваяcheck Центральная рецепция check Салон красоты check Ресторан check Минимаркетcheck Торговая зона