Предлагаем в аренду помещение в бизнес парке: «Московский шёлк »

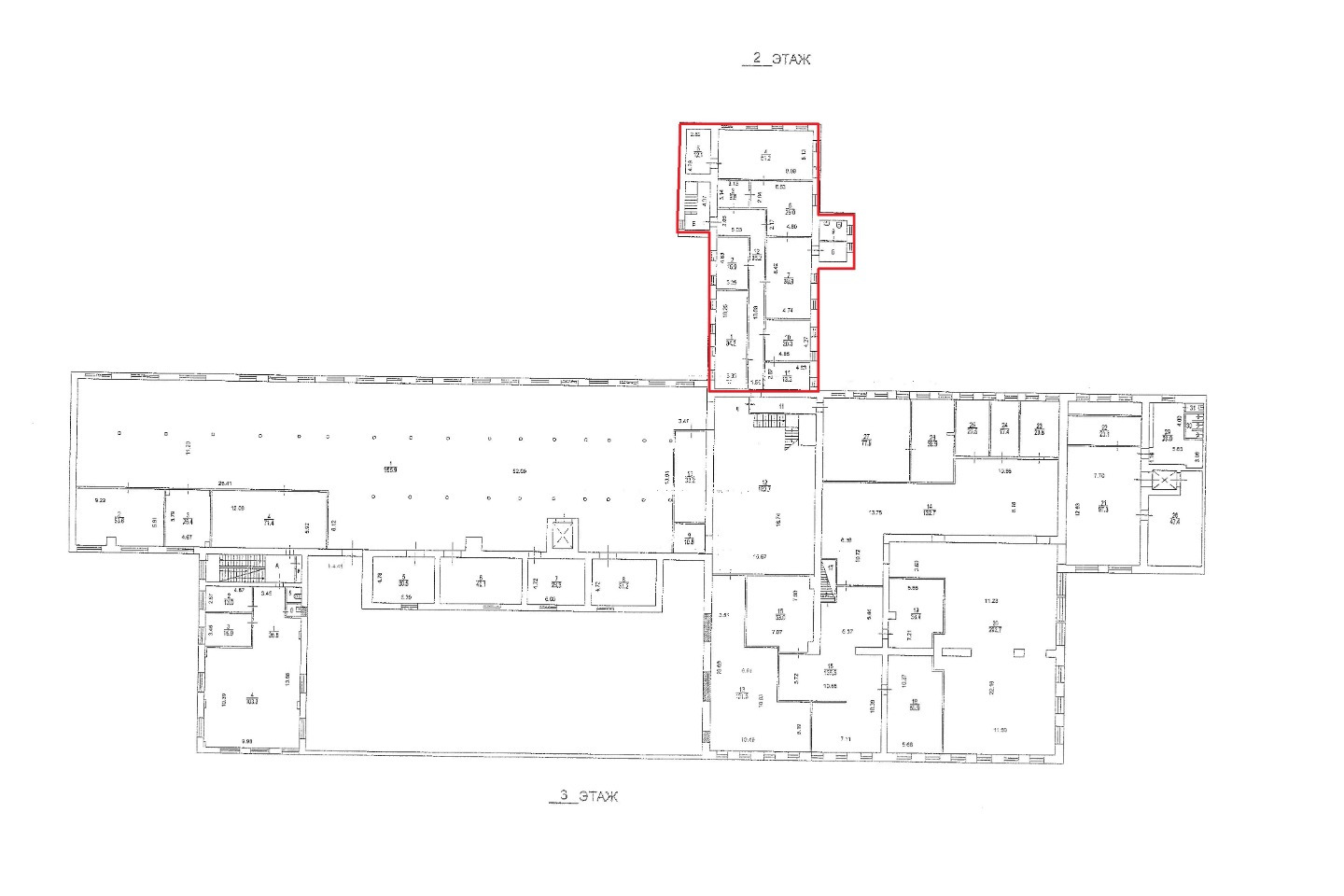
Общая площадь 293,6 кв.м.

Описание помещения:
- смешанная планировка.
- Назначение – офис

Коммуникации и инженерные системы:
- система приточно-вытяжной вентиляции, кондиционирование
- централизованная система отопления
- централизованная система пожарной сигнализации
- оборудованные сан. узлы

- круглосуточная охрана территории и видеонаблюдение
- круглосуточный подземный и наземный паркинг
-корпоративный транспорт от станций метро Спортивная и Киевская
- шаговая доступность метро Спортивная (15 минут)
- круглосуточная поддержка арендаторов через Диспетчерскую

Коммерческие условия:
- Ставка арендной платы 35 000 руб. кв.м. в год (включая НДС и эксплуатационные расходы).
- Месячная арендная плата: 856 333 руб.
- Дополнительные платежи: КУ оплачиваются отдельно по факту потребления
Ссылка на объявление: https://alfa-rielt.com/com/rentcommercial/92780
856 333 в месяц за все
Олег Макеев


Москва, переулок Большой Саввинский, д 12 стр 6
Киевская1.1 кмКиевская1.1 кмСтуденческая1.1 км

Информация по объекту

Вид объектаОфис Площадь293.6 Этаж2 Юридический адресПредоставляется ПланировкаОткрытая Кол-во мокрых точек1 СостояниеОфисная отделка МебельНет НалогНДС включен

Информация по зданию

Название БЦМастерская Клейна Тип строенияБизнес-парк Класс зданияB Этажей в доме3 КатегорияДействующее ВентиляцияПриточная КондиционированиеЦентральное ОтоплениеЦентральное Система пожаротушенияСигнализация ДоступПропускная система Номер налоговой4 ПарковкаНаземная Стоимость парковки20000

Цена и условия сделки

Тип арендыПрямая Срок арендыДлительный Минимальный срок аренды от11 Арендные каникулыЕсть Обеспечительный платеж856333 Предоплата1

В ставку включены

check Эксплуатационные расходы

Инфраструктура

check Буфетcheck Столоваяcheck Центральная рецепция check Банкоматcheck Аптекаcheck Отделение банка check Медицинский центрcheck Салон красотыcheck Фотосалон check Ателье одеждыcheck Паркcheck Ресторан check Минимаркетcheck Торговая зона check Конференц-зал