Предлагаем в аренду офисное помещение, в Бизнес Центре класса В+

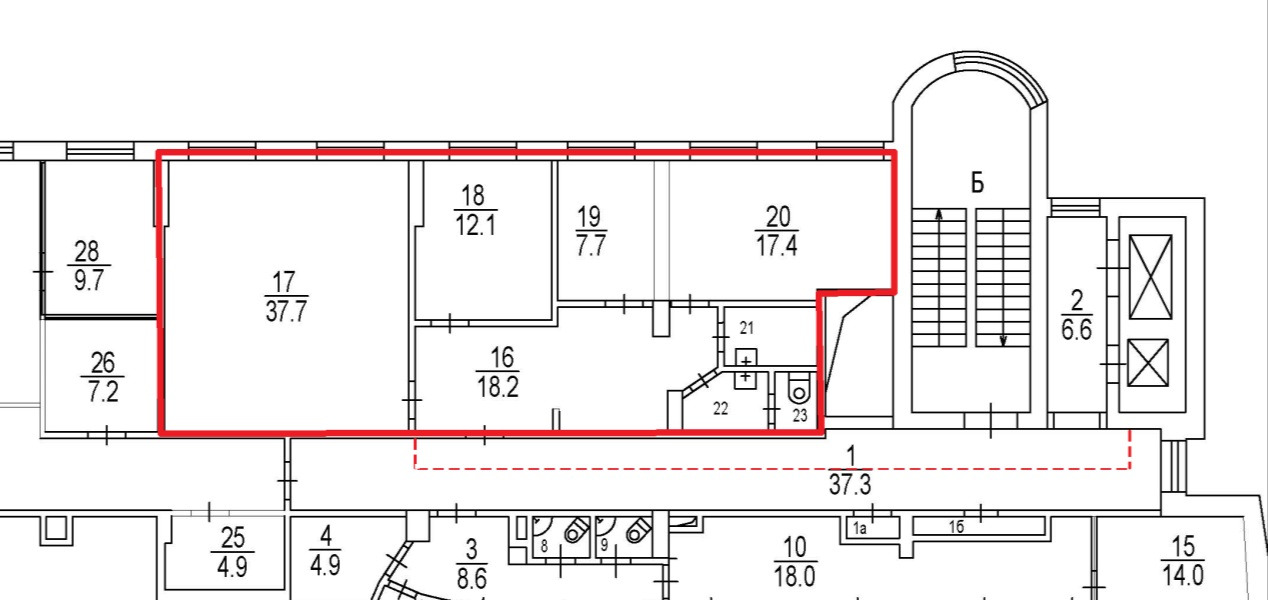
Общая площадь 110,3 кв. м.
Планировка смешанная: кабинеты, опен спейс, рецепшен, сан. узл..
С отделкой.
7-й этаж.

Бизнес Центр расположен в 1-й минуте от метро Спортивная.
Профессиональная управляющая компания.
Круглосуточная охрана.

Технические характеристики:
- Сплит система кондиционирования;
- Современная система пожаротушения;
- Система контроля доступа;
- Видеонаблюдение по периметру и внутри БК.
Провайдеры: Билайн, Комкор, МТС

Парковка: охраняемая, на прилегающей территории 18 300 р./мес.
Бесплатная гостевая парковка на территории.


Условия аренды:
Договор прямой аренды.
Арендная ставка 46 360 руб/м2/год с НДС.
Коммунальные платежи не включены в арендную ставку
(электричество, вода – по счетчикам, тепло – пропорционально площади)
Страховой депозит 2 месяца.

Свободно с 28.02.2026г.

Ссылка на объявление: https://alfa-rielt.com/com/rentcommercial/92543
426 126 в месяц за все
Олег Макеев


Москва, Хамовники район, улица Усачёва, д 33, стр 1
Спортивная0.1 кмЛужники0.4 кмФрунзенская1.3 км

Информация по объекту

Вид объектаОфис Площадь110.3 Этаж7 Юридический адресПредоставляется ПланировкаСмешанная Кол-во мокрых точек1 СостояниеОфисная отделка МебельНет НалогНДС включен

Информация по зданию

Название БЦСпектр Хамовники Тип строенияБизнес-парк Класс зданияB+ Этажей в доме8 КатегорияДействующее ВентиляцияПриточная КондиционированиеЦентральное ОтоплениеЦентральное Система пожаротушенияСигнализация ДоступПропускная система Номер налоговой4 ПарковкаНаземная Количество мест парковки100 Стоимость парковки18300

Цена и условия сделки

Тип арендыПрямая Срок арендыДлительный Арендные каникулыЕсть Обеспечительный платеж860000 Предоплата2

В ставку включены

check Эксплуатационные расходы

Инфраструктура