Предлагается в аренду офисы Бизнес центре «Якиманка».

Исторический центр Москвы, в 1 км. до Кремля.

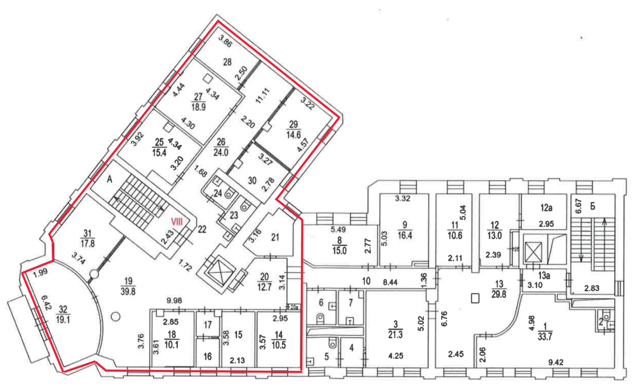
Офис на третьем этаже общей площадью 272кв.м.
Кабинетная планировка

До станции метро Полянка 300 м–4 минуты пешком.

Центральные системы кондиционирования и вентиляции
Современные инженерные системы
Системы безопасности и видеонаблюдения
Система умный дом
Стёкла с управлением прозрачности

Два пассажирских лифта(Otis, Schindler)

Арендная плата включает эксплуатационные расходы и НДС.
Ссылка на объявление: https://alfa-rielt.com/com/rentcommercial/92367
1 199 508 в месяц за все
Олег Макеев


Москва, улица Большая Якиманка, д 17/2 стр 2
Полянка0.2 кмТретьяковская0.7 кмТретьяковская0.7 км

Информация по объекту

Вид объектаОфис Площадь272 Этаж4 Юридический адресПредоставляется ПланировкаСмешанная Кол-во мокрых точек2 СостояниеДизайнерский ремонт МебельНет НалогНДС включен

Информация по зданию

Название БЦБол. Якиманка, 17/2 Год постройки1900 Тип строенияБизнес-центр Класс зданияA Площадь здания2997 Этажей в доме6 Высота потолков3,25 КатегорияДействующее ВентиляцияПриточная КондиционированиеЦентральное ОтоплениеЦентральное Система пожаротушенияСпринклерная ДоступПропускная система Номер налоговой5 ПарковкаНаземная

Цена и условия сделки

Тип арендыПрямая Срок арендыДлительный Арендные каникулыЕсть Обеспечительный платеж1199508 Предоплата1

В ставку включены

check Эксплуатационные расходы

Инфраструктура