Предлагаем в аренду офисное здание.

Отдельно стоящее 5-и этажное здание.
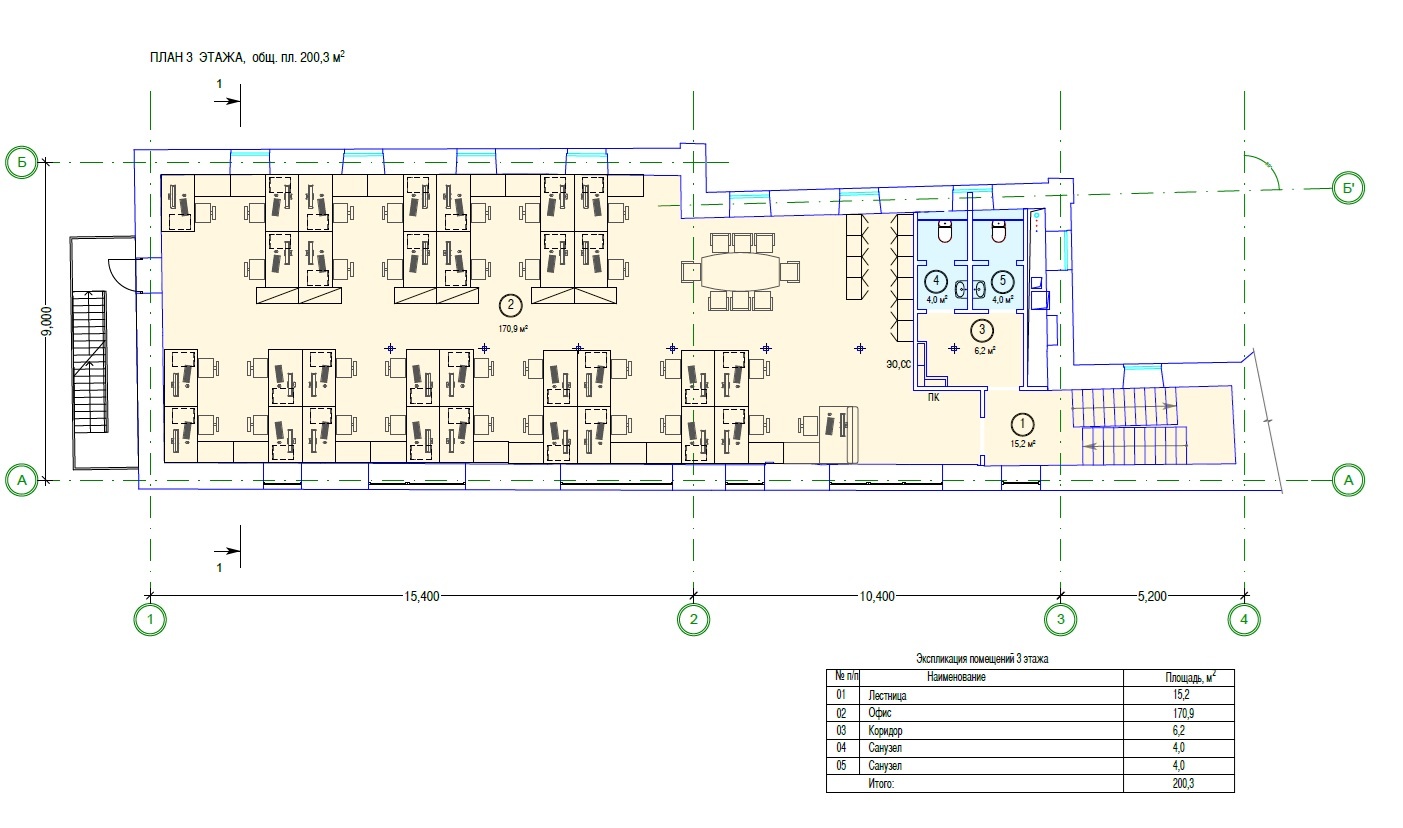
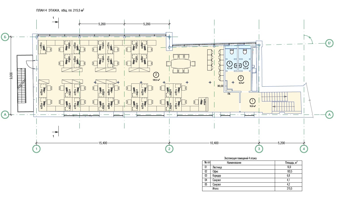
Общая площадь 1 046 кв.м.
Преимущественно открытая планировка.
Рассадка на 100-120 сотрудников

БЦ находится в 10 минутах от станций метро "Менделеевская", "Достоевская", "Новослободская" и "Марьина Роща.

3 м/м включены в стоимость.

Стоимость аренды: 2 800 000 рублей в месяц (включая эксплуатационные расходы и НДС 5%).
Коммунальные платежи оплачиваются отдельно.


Ссылка на объявление: https://alfa-rielt.com/com/rentcommercial/92259
2 800 000 в месяц за все
Олег Макеев


Москва, улица Образцова, д 4А к1
Достоевская0.6 кмМенделеевская0.8 кмНовослободская0.9 км

Информация по объекту

Вид объектаОфис Площадь1046 Этаж1 Юридический адресПредоставляется ПланировкаКабинетная Кол-во мокрых точек4 СостояниеОфисная отделка МебельНет НалогНДС включен

Информация по зданию

Название БЦОбразцова Год постройки2004 Тип строенияАдминистративное здание Класс зданияB Этажей в доме5 КатегорияДействующее ВентиляцияЕстественная КондиционированиеМестное ОтоплениеЦентральное Система пожаротушенияСигнализация ДоступПропускная система Номер налоговой15 ПарковкаПодземная Количество мест парковки2 Стоимость парковки30000

Цена и условия сделки

Тип арендыПрямая Срок арендыДлительный Минимальный срок аренды от11 Арендные каникулыЕсть Обеспечительный платеж2800000 Предоплата1

В ставку включены

check Коммунальные платежи check Эксплуатационные расходы

Инфраструктура