Предлагаем в аренду офис в БЦ Лесной.

Общая площадь 240 кв.м.
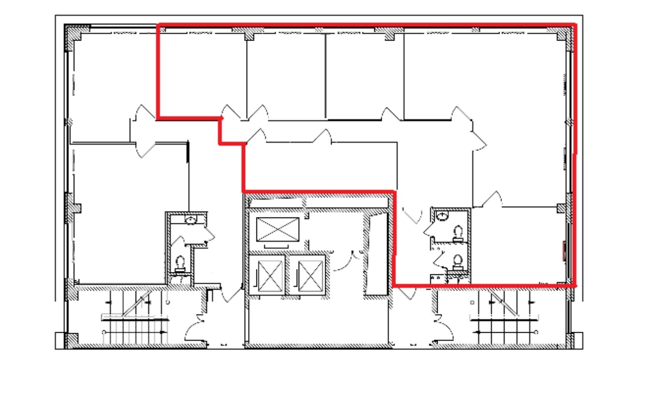
Планировка смешанная: пять кабинетов, переговорная, ресепшен, кухня, 2 с/у, темная комната.
Офис с качественной отделкой.
3-й этаж.

Современные системы:
-центрального кондиционирования.
-приточно-вытяжной вентиляции.
-пожаротушения с оповещением.

Коммерческие условия:
900.000 руб. в месяц с НДС
Эксплуатационные расходы включены.
Отдельно по счетчикам оплачивается электроэнергия и тепло.
Срок аренды: прямая аренда от 11 месяцев
Депозит: 2 месяца ставки аренды

Наземная парковка: 16 000 руб. в месяц
Подземная парковка: 20 000 руб. в месяц


Ссылка на объявление: https://alfa-rielt.com/com/rentcommercial/92164
900 000 в месяц за все
+7 (926) 114-91-23
Олег Макеев


Москва, переулок 4-й Лесной, д 13
Белорусская0.4 кмБелорусская0.6 кмБелорусская0.6 км

Информация по объекту

Вид объектаОфис Площадь240 Этаж3 Юридический адресПредоставляется ПланировкаСмешанная Кол-во мокрых точек1 СостояниеОфисная отделка МебельНет НалогНДС включен

Информация по зданию

Название БЦЛесная Тип строенияБизнес-центр Класс зданияA Этажей в доме8 КатегорияДействующее ВентиляцияПриточная КондиционированиеЦентральное ОтоплениеЦентральное Система пожаротушенияСигнализация ДоступПропускная система Номер налоговой10 ПарковкаПодземная Количество мест парковки 41 Стоимость парковки17 000

Цена и условия сделки

Тип арендыПрямая Срок арендыДлительный Минимальный срок аренды от11 Обеспечительный платеж1800000 Предоплата1

В ставку включены

check Эксплуатационные расходы

Инфраструктура