Предлагаем в аренду офис в особняке

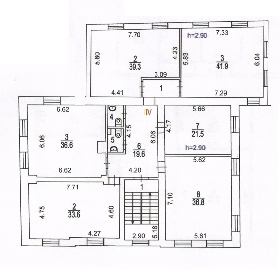
Общая площадь 254 кв.м.
Кабинетная планировка ( шесть кабинетов и два сан узла).
Арендная ставка 65.000 руб. за кв.м. в год с НДС.

Два м.м. по 25.000 руб.

Электроэнергия по счетчику.
Все остальное включено.
Ссылка на объявление: https://alfa-rielt.com/com/rentcommercial/91912
1 375 000 в месяц за все
Олег Макеев


Москва, переулок 1-й Колобовский, д 19 стр 2
Трубная0.2 кмЦветной бульвар0.3 кмЧеховская0.7 км

Информация по объекту

Вид объектаОфис Площадь254 Этаж3 Юридический адресПредоставляется ПланировкаКабинетная Кол-во мокрых точек2 СостояниеОфисная отделка МебельНет НалогНДС включен

Информация по зданию

Название БЦКолобовский Тип строенияБизнес-центр Класс зданияA Этажей в доме4 КатегорияДействующее ВентиляцияПриточная КондиционированиеМестное ОтоплениеЦентральное Система пожаротушенияСигнализация ДоступПропускная система Номер налоговой7 ПарковкаНаземная Количество мест парковки2

Цена и условия сделки

Тип арендыПрямая Срок арендыНа несколько месяцев Обеспечительный платеж1375000 Предоплата1

В ставку включены

check Эксплуатационные расходы

Инфраструктура