Бизнес-центр "Крылатский" класса B+

В БЦ используется центральный обогрев и предохлаждение приточной вентиляции, в помещениях установлены климатические блоки с индивидуальным выбором температуры.

Помещения оборудованы централизованной пожарной сигнализацией и средствами автоматического пожаротушения.
Установлены лифты Sigma.

Безопасность сотрудников обеспечивается круглосуточной охраной, системой охранной сигнализации и видеонаблюдения.

800 метров до ст. м. Крылатское

Арендная плата включает НДС.
ИФНС - 31
Ссылка на объявление: https://alfa-rielt.com/com/rentcommercial/91265
584 280 в месяц за все
Олег Макеев


Москва, бульвар Осенний, д 23
Крылатское0.8 кмМолодежная2.6 кмМневники4.1 км

Информация по объекту

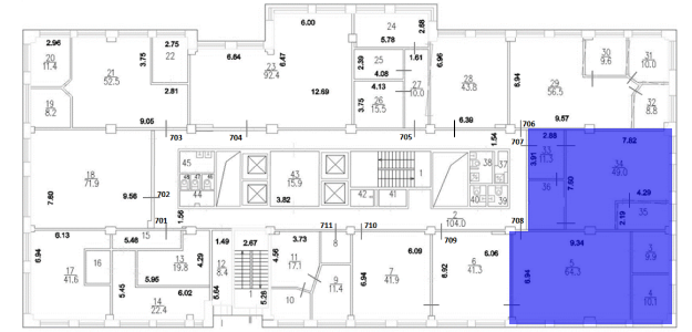
Вид объектаОфис Площадь164.2 Этаж7 Юридический адресПредоставляется ПланировкаСмешанная СостояниеОфисная отделка МебельНет НалогНДС включен

Информация по зданию

Название БЦКрылатский Тип строенияБизнес-центр Класс зданияB Этажей в доме16 КатегорияДействующее ВентиляцияПриточная КондиционированиеЦентральное ОтоплениеЦентральное Система пожаротушенияСигнализация ДоступПропускная система Номер налоговой31 ПарковкаПодземная Стоимость парковки17200

Цена и условия сделки

Тип арендыПрямая Срок арендыДлительный Арендные каникулыЕсть Обеспечительный платеж584280 Предоплата1

В ставку включены

check Эксплуатационные расходы

Инфраструктура