Трехэтажное отдельно стоящее здание.

Арендуемая площадь 938,81 кв.м с учетом коридорного коэффициента (12%).

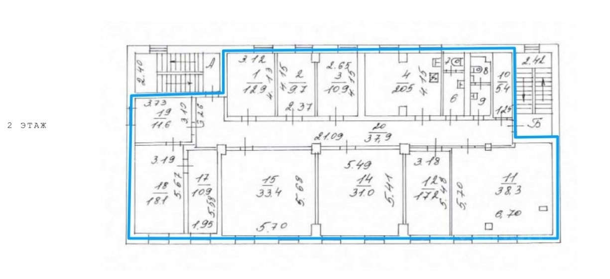
Кабинетная планировка. Возможна перепланировка, организация и оформление пространства под задачи вашего бизнеса.

Состояние помещений за выездом арендатора, рабочее.
Лифт отсутствует.

Арендная ставка 14 000 руб. за м2/год, включая НДС и эксплуатационные расходы.
ОТДЕЛЬНО ОПЛАЧИВАЮТСЯ коммунальные платежи, интернет, телефония.
Ссылка на объявление: https://alfa-rielt.com/com/rentcommercial/91262
977 924 в месяц за все
Олег Макеев


Москва, улица Кибальчича, д 5 стр 2
ВДНХ0.4 кмВыставочный центр0.9 кмАлексеевская1.1 км

Информация по объекту

Вид объектаЗдание Площадь838.22 Этаж1 Юридический адресПредоставляется ПланировкаСмешанная Кол-во мокрых точек4 СостояниеТиповой ремонт МебельНет НалогНДС включен

Информация по зданию

Тип строенияОсобняк Площадь здания838 Этажей в доме3 КатегорияДействующее ВентиляцияЕстественная КондиционированиеМестное ОтоплениеЦентральное Система пожаротушенияСигнализация ДоступСвободный ПарковкаНаземная

Цена и условия сделки

Тип арендыПрямая Срок арендыДлительный Арендные каникулыЕсть Обеспечительный платеж977924 Предоплата1

В ставку включены

check Эксплуатационные расходы

Инфраструктура