Предлагаем в аренду целиком корпус в бизнес-центре класса B+.
Планировка: смешанная.
Налоговая: 18.
Лифты: Есть.
Вентиляция: Приточно-вытяжная.
Кондиционирование: Центральное.
Безопасность: Круглосуточная охрана, Контроль доступа, Система пожаротушений, Видеонаблюдение.
Доступ 24/7
Провайдеры: Голден Телеком , ОРАНЖ, Плюс Телеком.
Парковка: Наземная
Ссылка на объявление: https://alfa-rielt.com/com/rentcommercial/91026
19 920 000 в месяц за все
Олег Макеев


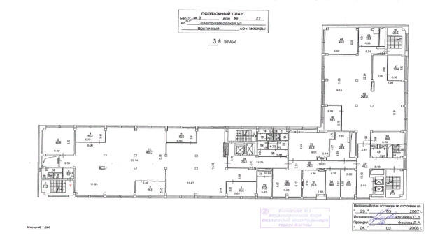
Москва, улица Электрозаводская, д 27 стр 9
Преображенская площадь0.7 кмЭлектрозаводская1 кмСеменовская1.2 км

Информация по объекту

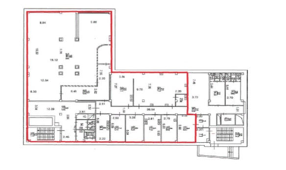
Вид объектаЗдание Площадь8300 Этаж1 Юридический адресПредоставляется ПланировкаСмешанная Кол-во мокрых точек4 СостояниеОфисная отделка МебельНет НалогНДС включен

Информация по зданию

Название БЦЛефорт Год постройки2006 Тип строенияДеловой центр Класс зданияB+ Этажей в доме5 КатегорияДействующее ВентиляцияПриточная КондиционированиеЦентральное ОтоплениеЦентральное Система пожаротушенияСигнализация ПарковкаНаземная

Цена и условия сделки

Тип арендыПрямая Срок арендыДлительный Арендные каникулыЕсть Обеспечительный платеж19920000 Предоплата1

В ставку включены

check Эксплуатационные расходы

Инфраструктура