Предлагаем в аренду представительское здание в районе Арбата.

Общая площадь: 606 кв. м.
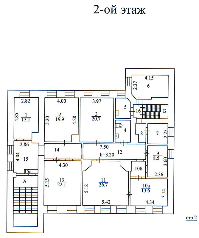
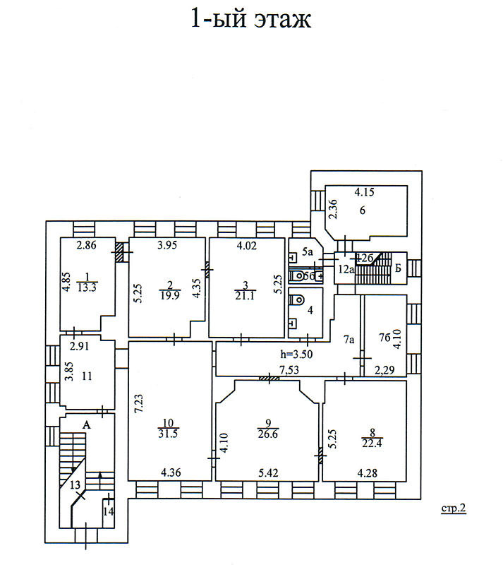
Коридорно-кабинетная планировка.
Состояние: готово к въезду.

Два этажа и мансарда.
1 этаж 218,2 кв.м,
2 этаж 215,7 кв.м,
Мансарда 173 кв.м,

В здании выполнен высококачественный премиальный ремонт.
Вентиляция и кондиционирование, централизованная система отопления и водоснабжения, видеонаблюдение, противопожарная и охранная системы).

На каждом из этажей есть оборудованная мебелью кухня и санузлы.

м. Арбатская и м. Смоленская в 10 минутах пешком.

Парковка на 6 машин.

Электричество 110 кВт.

Прямая аренда.

Арендная плата в месяц: 2 980 000 руб. УСН.
Коммунальные платежи оплачиваются по факту.
Ссылка на объявление: https://alfa-rielt.com/com/rentcommercial/90615
2 980 000 в месяц за все
Олег Макеев


Москва, переулок Трубниковский, д 22 стр 2
Смоленская0.6 кмСмоленская0.7 кмБаррикадная0.8 км

Информация по объекту

Вид объектаЗдание Площадь606 Этаж1 Юридический адресПредоставляется ПланировкаСмешанная Кол-во мокрых точек4 СостояниеДизайнерский ремонт МебельНет НалогУСН (упрощенная система налогообложения)

Информация по зданию

Тип строенияОсобняк Этажей в доме3 КатегорияДействующее ВентиляцияПриточная КондиционированиеМестное ОтоплениеЦентральное Система пожаротушенияСигнализация ДоступСвободный Номер налоговой4 ПарковкаНаземная Количество мест парковки6

Цена и условия сделки

Тип арендыПрямая Срок арендыДлительный Арендные каникулыЕсть Обеспечительный платеж2980000 Предоплата1

В ставку включены

check Эксплуатационные расходы

Инфраструктура