Офисы в Бизнес Центре класса В+

Общая площадь 1 345 кв.м.
Качественная отделка.

Помещения оборудованы приточно-вытяжной вентиляцией, системой пож. сигнализацией и оповещения людей при пожаре.

Во внутреннем дворе бизнес центра организована наземная стоянка для арендаторов и гостей бизнес центра. Стоимость парковки 5 000 рублей.

В здании имеется кафе-столовая, где можно вкусно и недорого перекусить, а также кафетерий.

Круглосуточную охрану осуществляют сотрудники ЧОП.

10 минут от метро и станции МЦК Ботанический сад.

Ставка аренды 25 418 руб. в год с НДС, включая ЭР и коммунальные платежи.
Дополнительно оплачивается эл-гия и уборка.
Обеспечительный платеж 2 месяцa.
Ссылка на объявление: https://alfa-rielt.com/com/rentcommercial/90454
2 849 012 в месяц за все
Олег Макеев


Москва, улица Докукина, д 16 стр 3
Ботанический сад0.8 кмБотанический сад0.8 кмРостокино1.2 км

Информация по объекту

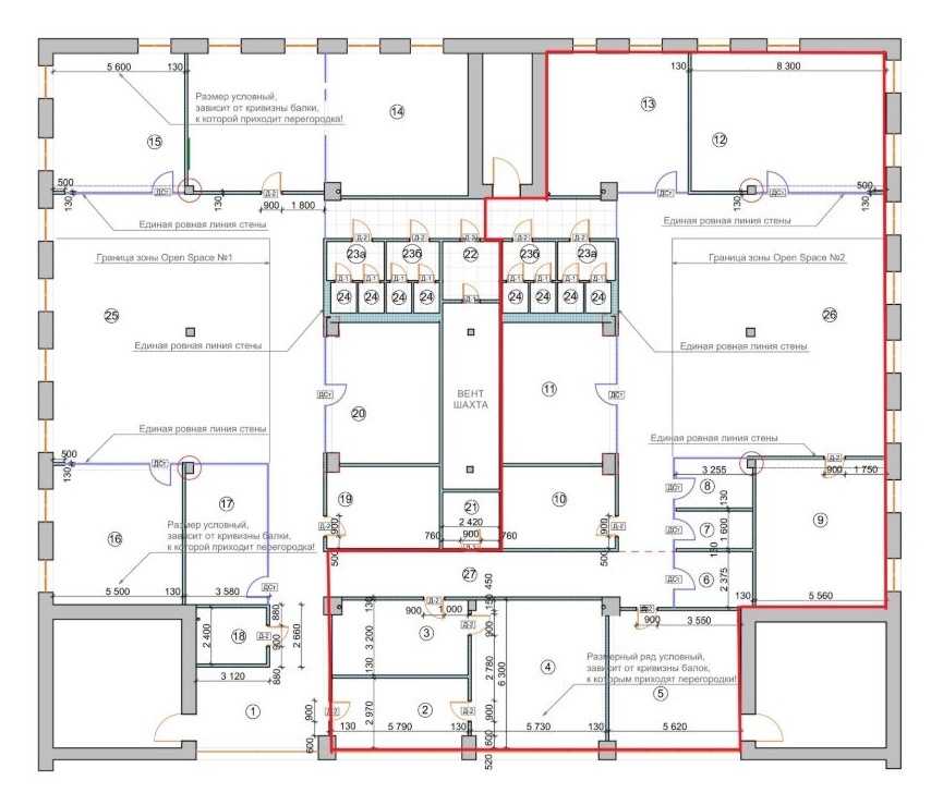
Вид объектаОфис Площадь1345 Этаж5 Юридический адресПредоставляется ПланировкаСмешанная Кол-во мокрых точек2 СостояниеОфисная отделка МебельНет НалогНДС включен

Информация по зданию

Название БЦСмена Тип строенияБизнес-центр Класс зданияB Этажей в доме7 КатегорияДействующее ВентиляцияЕстественная КондиционированиеМестное ОтоплениеЦентральное Система пожаротушенияСигнализация ДоступПропускная система Номер налоговой16 ПарковкаНаземная Стоимость парковки5000

Цена и условия сделки

Тип арендыПрямая Срок арендыДлительный Обеспечительный платеж5698025 Предоплата2

В ставку включены

check Коммунальные платежи check Эксплуатационные расходы

Инфраструктура