Особняк представительского класса

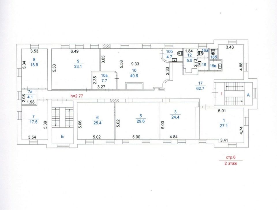
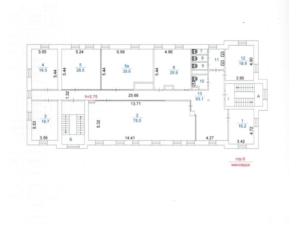
Общая площадь 1 638 кв.м.
Этажность: 4 этажа + подвальный этаж
Качественный ремонт внутренних помещений.
Электрическая мощность: 152 кВт
6 парковочных мест.
Высота потолков 2.75 м.

Здание оборудовано современными системами:
- вентиляции
- центрального кондиционирования
- пожарной безопасности
- видеонаблюдения
- контроля доступа.

Профессионально оборудованная серверная

Парковка: внутренний двор на 6 м/м.

Ставка аренды 60 000 руб./кв.м в год. НДС 5%
Коммунальные платежи оплачиваются дополнительно по показаниям приборов учета.

Освобождается от аренды с 12.07.2026 года.
Ссылка на объявление: https://alfa-rielt.com/com/rentcommercial/6313
8 190 000 в месяц за все
Олег Макеев


Москва, площадь Смоленская-Сенная, д 27 стр 6
Смоленская0.4 кмСмоленская0.5 кмКиевская0.9 км

Информация по объекту

Вид объектаЗдание Площадь1638 Этаж1 Юридический адресПредоставляется ПланировкаСмешанная Кол-во мокрых точек4 СостояниеОфисная отделка МебельНет НалогУСН (упрощенная система налогообложения)

Информация по зданию

Тип строенияОсобняк Класс зданияB Этажей в доме4 КатегорияДействующее ВентиляцияПриточная КондиционированиеМестное ОтоплениеЦентральное Система пожаротушенияСигнализация ДоступСвободный ПарковкаНаземная Количество мест парковки8

Цена и условия сделки

Тип арендыПрямая Срок арендыДлительный Арендные каникулыЕсть Обеспечительный платеж8190000 Предоплата1

В ставку включены

check Эксплуатационные расходы

Инфраструктура