Предлагаем в аренду офис в Бизнес-Центре «Берлинский Дом» класс А

Общая площадь 1 862 кв.м.
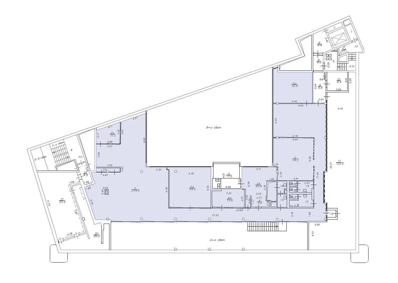
Планировка: open space, кабинеты, кухня, сан. узелы
Расположены на 7-8 этажах.

Бизнес-Центр является одним из наиболее знаковых бизнес-центров класса «А» города Москвы.

Вентиляция: приточно-вытяжная.
Кондиционирование: центральное.
Пожарная сигнализация: датчики пожаротушения.
Охрана: круглосуточная охрана здания.

Окружение бизнес-центра является уникальным, в шаговой доступности находится целый ряд знаковых объектов: Большой Театр, Отель «Арарат Парк Хаятт», Отель «Марриотт Роял Аврора», бутики в Столешниковом переулке, ЦУМ.

Арендная ставка: 87 600 руб./м² в год, с НДС и OPEX
Ссылка на объявление: https://alfa-rielt.com/com/rentcommercial/4951
13 592 600 в месяц за все
Олег Макеев


Москва, улица Петровка, д 5
Театральная0.3 кмКузнецкий мост0.4 кмОхотный ряд0.5 км

Информация по объекту

Вид объектаОфис Площадь1862 Этаж7 Юридический адресПредоставляется ПланировкаСмешанная Кол-во мокрых точек1 СостояниеОфисная отделка МебельНет НалогНДС включен

Информация по зданию

Название БЦБерлинский Дом Тип строенияБизнес-центр Класс зданияA+ Этажей в доме8 КатегорияДействующее ВентиляцияПриточная КондиционированиеЦентральное ОтоплениеЦентральное Система пожаротушенияСигнализация ДоступПропускная система Номер налоговой7 ПарковкаПодземная

Цена и условия сделки

Тип арендыПрямая Срок арендыДлительный Минимальный срок аренды от11 Обеспечительный платеж13592600 Предоплата1

В ставку включены

check Эксплуатационные расходы

Инфраструктура

check Центральная рецепция check Банкомат check Салон красоты check Ресторан check Торговая зона check Конференц-зал