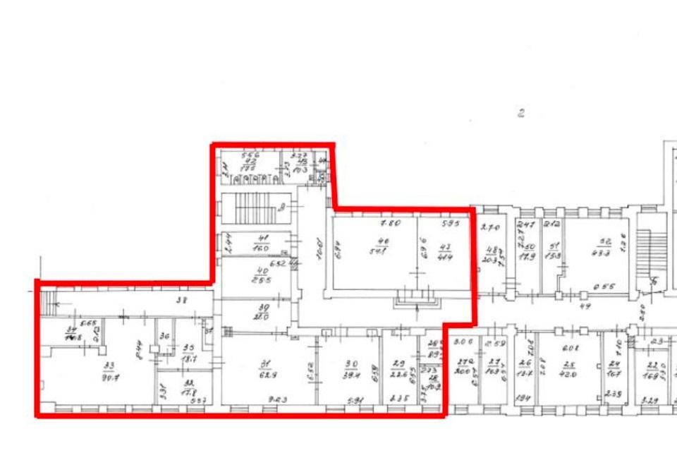
Предлагаем в ареднду помещение 568 м2 на 2 этаже в Офисном здании.
Офисный блок состоит из более 10 кабинетов, 5 с/у, хол. Офисная отделка.
Пешая доступность от м. Павелецкая и м. Таганская.
Парковка: более 50 м/м
В здании 3 пассажирских лифта
Ставка 15000 р за м2 в год, все включено, кроме э/э.
Парковка - 8000р за 1 м/м в месяц
Дополнительные расходы: Э/Э по факту потребления, интернет и парковка.
Текущие арендаторы: офисы, школы танцев, салон красоты, кафе, шоурумы, музыкальные школы
Ссылка на объявление: https://alfa-rielt.com/com/rentcommercial/4764
18 000 за м² в год
852 150 в месяц за все
Левченко Елена


Москва, набережная Шлюзовая, д 8 стр 1
Павелецкая0.6 кмПавелецкая0.7 кмТаганская1.1 км

Информация по объекту

Вид объектаОфис Площадь568.1 Этаж2 Юридический адресПредоставляется ПланировкаКабинетная Кол-во мокрых точек1 СостояниеОфисная отделка НалогНДС включен

Информация по зданию

Название БЦШлюзовая 8 Тип строенияОфисное здание Класс зданияB Этажей в доме7 КатегорияДействующее ВентиляцияЕстественная КондиционированиеМестное ОтоплениеЦентральное Система пожаротушенияСигнализация ДоступПропускная система ПарковкаНаземная Количество мест парковки100 Стоимость парковки8000

Цена и условия сделки

Тип арендыПрямая Срок арендыДлительный Предоплата2

В ставку включены

check Коммунальные платежи check Эксплуатационные расходы

Инфраструктура

check Буфетcheck Столоваяcheck Центральная рецепция check Банкоматcheck Аптека check Медицинский центрcheck Салон красотыcheck Фотосалон check Ателье одеждыcheck Складские помещенияcheck Паркcheck Ресторан check Фитнес-центрcheck Супермаркетcheck Минимаркетcheck Торговая зона check Конференц-зал